服务热线
0771-3370160
一、运行及控制目标
为保障人员安全健康,实验室的通风设备和系统必须做到:
1. 有效及时地从污染源排放有毒气体和颗粒。
2. 为防止实验过程中有毒气体和颗粒以及化学品存放过程中挥发的有害气体
向其他空间外溢,实验室需保证一定的负压。
3. 实验室内气流组织良好,送回风气流速度及紊流度均能控制在较小的范围
内,以免室内气体的扰动引起排风柜内气体外溢。
4. 实验室内换气率能有效控制,室内空气应充分置换,保证其新鲜度。
5. 通风系统充分考虑实验室内设置多台排风柜情况下高峰时同时使用、夜间值
班工况下最小排风等各种情况,系统通风容量要既达到最大通风要求,又要充分考虑其调节灵活性,实现系统经济运行。应该考虑设备的同时使用系数,以使系统设备配置更趋于合理,最大限度的节能。
6. 有效控制实验室内的温湿度,室内噪音应小于58 dbA,为工作人员提供舒适的环境。
二、实验室通风柜排风及补风系统运营及控制方案
1、通风柜方案
1~12层的普通实验室采用旁通型定风量通风柜(有特殊要求的除外),13~14层的理化实验室采用旁通型定风量通风柜和变风量通风柜,具体配置详见设计图纸。通风柜应满足国家相关规范及标准要求,且均应配置传感器及控制器(根据监测的面风速调节对应的变风量阀开度)。
2.1~12层普通实验室通风柜系统控制
平时关闭通风柜排风及补风系统上的电动密闭阀(EVD)。当使用通风柜时,通过通风柜上的手动开关联锁开启排风及补风系统电动密闭阀,由定风量阀控制排风量恒定;当通风柜面窗不开启时,排风从旁通口进入不应有噪声。

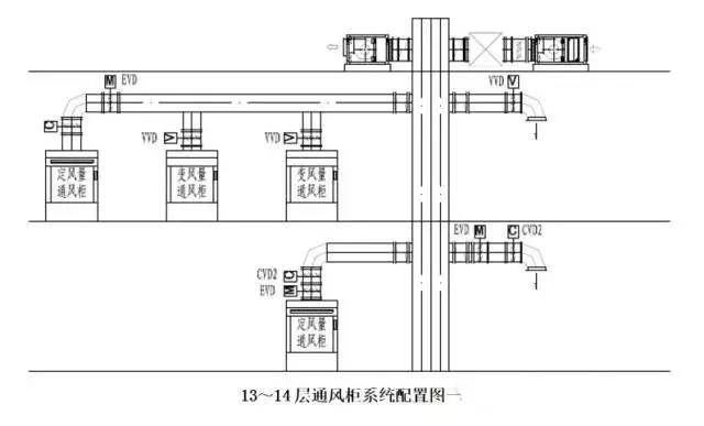
3.13~14层普通实验室通风柜系统控制
(1)单个通风柜实验室:采用旁通型通风柜,送、排风系统中采用双稳态定风量调节方式来实现通风柜工作状态和空闲状态下两个不同风量值间的切换。当实验室有人且通风柜不使用时,密闭阀EVD开启,双稳态定风量阀CVD2处于低档状态,满足室内换气次数不小于6次/h的要求;当实验室有人使用通风柜时,密闭阀EVD开启状态不变,双稳态定风量阀CVD2处于高档状态,满足通风柜的排风量要求;当室内无人时,手动关闭密闭阀EVD,节约能源。
(2)多个通风柜实验室:采用旁通型通风柜和变风量通风柜,送、排风系统中采用双稳态定风量调节方式和变风量调节方式来实现通风柜工作状态和空闲状态下风量值间的切换。当实验室有人且通风柜不使用时,密闭阀EVD开启,双稳态定风量阀CVD2处于低档状态,满足室内换气次数不小于6次/h的要求。当实验室有人使用通风柜时,密闭阀EVD开启状态不变,如使用旁通型通风柜,则双稳态定风量阀CVD2处于高档状态,满足通风柜的排风量要求;如使用变风量通风柜,则其对应的变风量阀VVD根据面风速调节排风量及补风量,双稳态定风量阀CVD2处于低档状态不变。当室内无人时,手动关闭密闭阀EVD,节约能源。


4.风机系统控制
任何一个通风柜开启则联锁开启对应的屋顶送排风机,无通风柜开启或使用时则风机延时停止运行。风机采用管道静压变频控制,控制器持续监测管道内的静压,通过调节风机转速来恒定静压,保证多台通风柜开启时的风压。
4.其他
在系统运行时排风系统先于送风系统启动,关闭时则与之相反,系统运行中,当室内气流受到干扰。室内压差与系统设定压差值发生偏差时,送、排风系统中的变风量调节阀会迅速启动,自行调节到合适的开启度,再次平衡系统压力,对实验室内压差进行精确控制;设在排风柜上的变风量阀能使排风柜面板前的面风速在面板开启到任意状态时保持稳定在安全值范围内。
三、通风系统采用的控制单元
1.定风量阀(CVD,CV2)的技术要求:
a. 定风量调节阀应为压力无关型、机械式自动调节装置,阀体为镀锌钢板
等高品质材料制成,经过定风量调节阀的风量可严格按照刻度盘标定的风量值送、排风,而不受管道中静压及风量变化的影响。
b. 定风量调节阀阀体结构为单阀板节流形式,并根据阀前静压的变化自动
调整阀位的开度,从而保证送风量的恒定。
c. 定风量调节阀应采取内插入或法兰式连接,并可附带电动执行器,以满
足双稳态定风量调节或远程控制的要求。
d. 定风量调节阀可在管道静压压差50至1000Pa范围内正常工作,安装时
不受位置限制,水平或垂直安装均可。安装时对现场条件要求较低,即使入口或出口条件不利也能正常工作。
e. 定风量调节阀流量调节精度在不同静压条件下应小于设定风量的8%。
f. 定风量调节阀外部应有风量刻度盘以及指针显示流量刻度,并可在刻度
盘风量范围内任意设定风量,并能保证风量刻度与实际风量误差<±4%。
2.变风量阀(VVD)的技术要求:
a. 变风量调节阀阀体应采用热镀锌钢材等高品质材料,轴承应满足抗腐蚀、
抗磨损、抗老化及气密性的要求;镀锌钢板叶片外圈应安装密封条,以保证风阀的气密性,当入口压力为750Pa时,风阀的漏风量不超过最大额定进风量的1%。
b. 内置压差传感器和压差控制器,能够准确设定所需压差值,当环境压差与
设定压差值有偏差时阀门能够迅速做出反应,并且在3秒内完成风量调节,达到既定的系统压差。
c. 变风量调节阀工作温度范围在10至50°C,管道压力差范围20至
1500Pa,安装时不受位置限制,水平或垂直安装均可。
d. 所供产品在出厂前都必须进行过严格的气流测试和参数标定,产品的控
制精度应<±5%。
e. 应用在排风柜上的变风量阀应进行防腐喷涂,阀门控制响应时间〈1秒,
平衡时间〈3秒,能将排风柜面风速控制在设定值的±20%的范围内。 f. 排风柜上的变风量阀具有对通风柜运行状况的监测功能,在通风系统发
生异常的时候,会立即报警,并可根据设置在通风柜旁的紧急按钮状态,立即将某个通风柜排风量开到最大以应付紧急状态。
g. 变风量阀应为压力无关型的风量调节控制,保证系统中多间实验室或多
个通风柜同时运行时,各自独立调节,互不干扰;
3.密闭阀(EVD)的技术要求:
a. 板式碟阀,阀板叶片外圈应安装密封条,阀门关闭时的漏风量满足国家相关规范及标准的要求。
b. 阀体和附件均采用优质镀锌钢板制作,镀锌钢板的厚度不小于0.6mm,应具有良好的机械加工性能,应避免在零件的折弯、滚压成型过程中破坏表面镀锌层。接缝采用焊接方式应采取防腐措施;
c. 阀体的滚圆度应尽可能高,以保证风阀的气密性;
d. 轴承应满足抗腐蚀、抗磨损、抗老化及气密性的要求;
e. 最大承压能力不低于1500Pa;
f. 正常运行温度为10-50℃;
g. 阀体采用喷涂,阀片用不锈钢材料,已满足腐蚀性环境。
h. 选配欧美知名、技术成熟的执行机构,保证马达关断次数不少于60000次,免维护。
声明:转载此文是出于传递更多信息之目的。若有来源标注错误或侵犯了您的合法权益,请作者持权属证明与本网联系,我们将及时更正、删除,谢谢。实验室是学校建设的重要组成部分,是保证实施教学大纲、培养学生初步的科学实验能力、生产试验技能和开展科技活动的场所,因此博恩为实验室创造一个良好的育人环境。不管是已建还是正在创建实验室的学校,都要重视实
现代化的食品检测实验室在专业上涉及到食品化学、物理学、微生物学、分子生物学和食品感官品评等多个学科,在功能上又涉及到给水、排水、通风、排风、强电、弱电、空调、消防、废气废液处理、集中供气等复杂的工艺技