收藏本站
首页
登录
免费注册
我的收藏
帮助中心
全部产品
全部产品
仪器设备
试剂耗材
热门关键字:
仪器设备
试剂耗材
其他服务
首页
我有需求
产品种类
设计装修
仪器设备
试剂耗材
管理服务
品牌厂商
行业案例
医疗卫生
出入境检疫
环境检测
水质检验
农产品检验
食品检验
药品/化妆品检验
林/畜牧/渔
第三方检测
石油/化工
公安/医学检测
教育/高校
工矿企业
行业资讯
行业知识
专家访谈
行业新闻
公司动态
平台公告
关于我们
产品服务大全
设计装修
实验室功能规划
实验室工艺设计
通风暖通设计
基础装修设计
强弱电安全设计
给排水设计
自动控制设计
气路管路设计
智慧实验室设计
项目造价概算
实验室功能规划
查看大类
实验室楼层定位布局
实验室房间隔断规划
室外设备安装位置要求
实验室工艺设计
查看大类
实验台柜设备规划
仪器设备定位布局
通风暖通设计
查看大类
暖通空调系统布局选型
房间新风系统布局
设备通风系统布局选型
废气除尘环保系统设计
基础装修设计
查看大类
地面选材功能选型
隔墙门窗选材功能设计
吊顶屋面选材设计
强弱电安全设计
查看大类
消防监控安全设计
仪器设备及稳压设计
开关插座灯具布局选型
网络广播系统设计
给排水设计
查看大类
给排水选材与定位设计
实验集中纯水系统设计
实验室废液处理设计
污水环保处理设计
自动控制设计
查看大类
设备节能互动控制设计
房间环境自动控制设计
能耗控制自检系统设计
气路管路设计
查看大类
气体管路系统布局规划
安全报警系统设计
智慧实验室设计
查看大类
LIMS系统接入控制设计
实验室综合管理系统设计
掌上实验室远程系统设计
项目造价概算
查看大类
核心设备主材参数设定
仪器设备参数设定
整体可行性研究报告
仪器设备
采样设备
制样前处理设备
计量测量设备
温控处理设备
光谱仪器
色谱仪器
质谱仪器
电化学仪器
物性仪器
光学仪器
生化仪器
环境监测仪器
仪器配套
台柜类
采样设备
查看大类
气体采样设备
粉尘采样设备
油质采样设备
固体采样设备
水质采样设备
其他采样设备
制样前处理设备
查看大类
粉碎\研磨
清洗\消毒
消解
萃取
混合乳化\分散
分离\过滤
纯化\浓缩
合成\反应
计量测量设备
查看大类
天平
移液器
长度测量类
电学测量设备
温湿度设备
压力仪表仪器
滴定器
密度测量设备
温控处理设备
查看大类
加热溶解设备
干燥设备
培养设备
光谱仪器
查看大类
ICP-AES
AAS
原子荧光光谱
紫外分光光度计
近红外光谱仪
红外光谱仪
激光拉曼光谱仪
光电直读光谱仪
X射线荧光光谱仪
其他光谱仪器
色谱仪器
查看大类
气相色谱仪
液相色谱仪
离子色谱仪
超临界色谱仪
薄层色谱仪
其他类色谱仪
质谱仪器
查看大类
GC-MS
ICP-MS
LC-MS
同位素质谱仪
电化学仪器
查看大类
电导率测定仪
水分测定仪
pH计
电位滴定仪
库伦仪
物性仪器
查看大类
热分析仪器
黏度仪
无损探测仪
硬度仪\密度仪
粒度\颗粒\粉末仪器
表界面物性测试
燃烧测定仪
试验机
环境试验箱
测厚仪
其他物性测试仪器
光学仪器
查看大类
电子显微镜
光学显微镜
光学测量仪
生化仪器
查看大类
分子生物学仪器
细胞生物学仪器
微生物检测仪器
动物实验仪器
临床检验仪器设备
生物工程设备
成像系统
环境监测仪器
查看大类
水质分析仪器
气体检测仪器
辐射检测仪器
其他环境监测仪器
仪器配套
查看大类
真空泵
冷却器
其他配套
冷藏设备
查看大类
台柜类
查看大类
试剂耗材
试剂药品
玻璃\器皿
实验器械
常用耗材
标准品
防护用品
仪器配件
办公用品
实验用气
管制品
其他
待定
试剂药品
查看大类
有机试剂
无机试剂
生化试剂
指示剂
快检试剂盒
玻璃\器皿
查看大类
烧器类
量器类
容器类
皿管类
标准口类
成套装置
漏斗
实验器械
查看大类
架\台\盘\杯等
刀\剪\勺\镊等
针\环\棒\筛等
温度计
清洁用具
常用耗材
查看大类
采样袋\封口膜等
纸品\滤器\滤膜
瓷制品\玛瑙
橡\乳\硅胶品\塑料制品
吸嘴
标准品
查看大类
化学计量标准品
冶金标准品
药检标准品
防护用品
查看大类
呼吸防护
身体防护
手部防护
听力防护
眼部防护
仪器配件
查看大类
色谱柱
仪器专用耗材配件
色谱耗材配件
办公用品
查看大类
办公用纸
办公用笔
日用百货
合同
实验用气
查看大类
管制品
查看大类
一类管制
二类管制
三类管制
易制爆
其他
查看大类
待定
查看大类
管理服务
合作共建
整体维保
仪器维保
仪器交流
仪器租赁
合作共建实验室
查看大类
实验室整体维保
查看大类
仪器保养维修
查看大类
仪器交流
查看大类
仪器租赁
查看大类
请选择下拉框的具体选项先!
首页
行业案例
全部
行业案例
医疗卫生
出入境检疫
环境检测
水质检验
农产品检验
食品检验
药品/化妆品检验
林/畜牧/渔
第三方检测
石油/化工
公安/医学检测
教育/高校
工矿企业
相关产品品牌
海产实验室
所属行业:
林/畜牧/渔
查看详情
相关仪器设备
相关试剂耗材
化验室平面布置图
所属行业:
药品/化妆品检验
查看详情
相关仪器设备
相关试剂耗材
第三方食品检测中心
所属行业:
食品检验
查看详情
相关仪器设备
相关试剂耗材
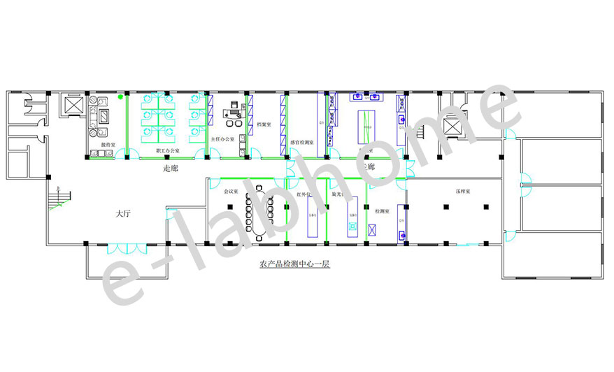
甘蔗研究所检测中心
所属行业:
农产品检验
查看详情
相关仪器设备
相关试剂耗材
水质检测中心—平面布置
所属行业:
水质检验
查看详情
相关仪器设备
相关试剂耗材
环境监测站平面布置图
所属行业:
环境检测
查看详情
相关仪器设备
相关试剂耗材
出入境检验检疫局
所属行业:
出入境检疫
查看详情
相关仪器设备
相关试剂耗材
医院实验室
所属行业:
医疗卫生
查看详情
相关仪器设备
相关试剂耗材
« 上一页
1
2
3
4
下一页 »
专家
专栏
账户
设置
我的仓库
全部产品
全部产品
仪器设备
试剂耗材
仪器设备品牌
试剂耗材品牌
热门关键字:
仪器设备
试剂耗材
其他服务
咨询在线客服
服务热线
0771-3370160
扫码关注微信公众号
检验检疫
环境保护
食品检测
药品检测
生化类
地矿类
法规类
所有专家
×
注册
登录
微信扫码登录
去商城
获取验证码
30
秒后重发
还不是会员?请先注册!
忘记密码?
操作码
手机号
登 录
还不是会员?请先注册!